Draft Wee Waa Community and Business Centre Detailed Plans
28 days Public Exhibition has concluded.
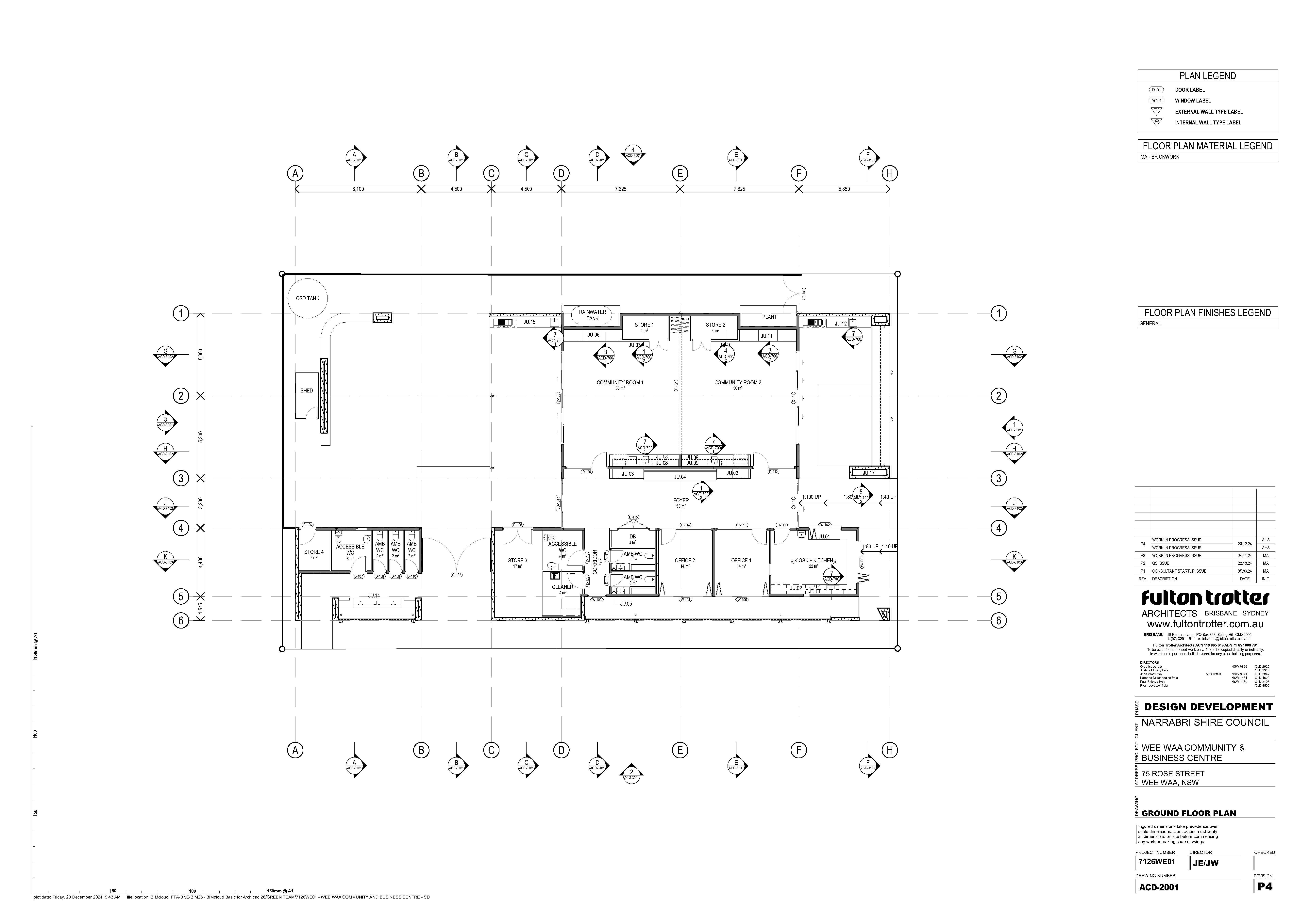
Council is excited for the Wee Waa community to view the Draft Wee Waa Community and Business Centre detailed plans.
At the December 2024 Ordinary Council Meeting, Council approved the design for the Wee Waa Community and Business Centre and proceed to Development Application. (Minute 252/2024).
How do I view these plans in detail?
You can view these plans in the "Documents" tab on the right hand-side.
We have engaged with the Wee Waa community over recent years to build an understanding of how they would use and value the Wee Waa Community and Business Centre. Details of these engagement activities can be found in the "Documents Tab".
The feedback from our community and stakeholders contributed to the development of the detailed plans. This was based on an understanding of community needs, current and future demand, and consideration of safety, public health and accessibility.
Upcoming community events
Want to see these plans and receive more information? You are welcome to come along to one or both pop-up events at the following locations:
Thursday 16 January 2025 (7.30am-1.30pm) Wee Waa Newsagency
Wednesday 23 January 2025 (3.00pm - 6.00pm) Wee Waa Community Arts and Cultural Centre,
Cannot make one of these events and are wanting further information, you can reach out to via the below: -
Post: Narrabri Shire Council, PO Box 261, Narrabri NSW 2390
Email: council@narrabri.nsw.gov.au
In person: 46-48 Maitland Street, Narrabri or
Phone: 0267 996866



